The Parcel

Logo Affordable Housing

Para español: haga clic en la esquina superior derecha para traducir esta página

settings

translate page

To get on the interest list for a unit in "The Sawyer" (Parcel Phase 1) or for additional information about the lease-up and move-in process, please contact Buckingham Property Management at (855) 452-8250, Option 0

Construction Update - March, 2024

  • Pacific West Communities, Inc. provided a construction update to Town Council on March 20 and notified the Town that Building ‘B' of The Sawyer (15 units) will be ready at the end of April, and Building 'A' will be ready for occupancy in July. Building 'A' includes 65 units (+Managers unit), a community room, and childcare facility.
  • Buckingham Property Management (Property Manager) reached out during the week of March 4 to the initial 150 households on the interest list to schedule in-person interviews for the week of March 11 and to provide information on what documentation is needed at the interviews to verify income, employment, etc. In-person interviews were held the week of March 11. 
  • For additional information about the lease-up and move-in process, please contact Buckingham Property Management at (855) 452-8250, Option 0 or follow The Sawyer on Facebook. 

The Sawyer main building

The Sawyer view from window_3-15

The Saywer kitchen and living room

The Sawyer 2_3-15

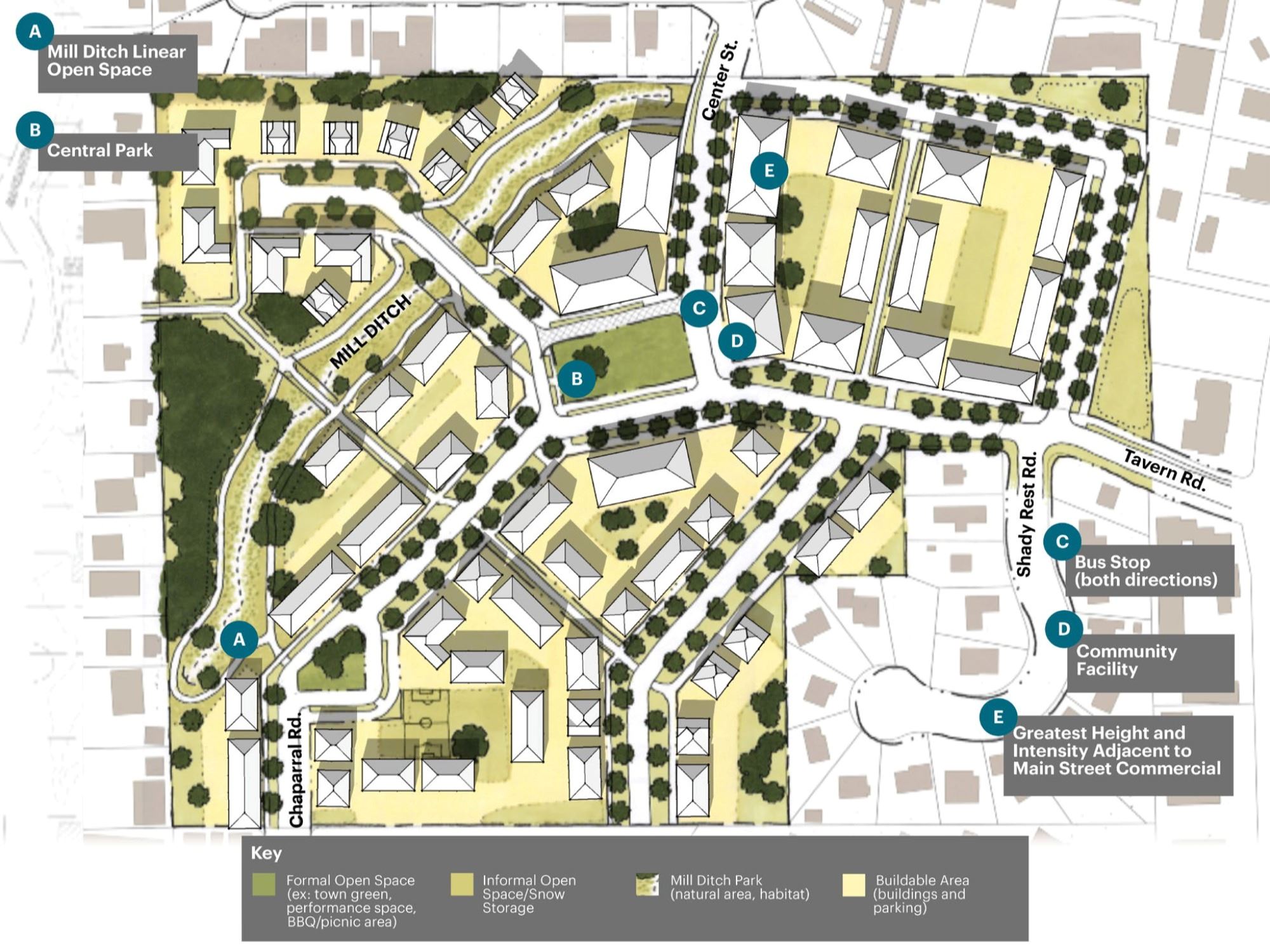
The Parcel Master Plan

Phase 1 - The Sawyer

What will be included in Phase 1?

  • 80 Units of Affordable Housing
  • 1 Manager's Unit
  • Daycare
  • Indoor Community Space
  • Public Park

When will the units be available to rent? The target occupancy date is currently spring 2024, pending completion of construction.

How do I get on the interest list for a unit? Please contact Buckingham Property Management at (855) 452-8250, Option 0.

Phase 1 Details:

Phase 1 includes 81 units within two buildings with 66 units in the larger building and 15 units in the smaller building. The project also includes a daycare, community space, public park, and covered podium parking. The unit composition and sizes are as follows:  

Phase 1 Affordability 

The apartments within Phase 1 will serve a range of affordability with the majority of the units at 60% AMI. Rental rates will be based on the annual income and household size of the applicant. undefined Opens in new window

* Click here for more information on Area Median Income.

Press Releases

Stay Informed and Involved 

  • Join The Parcel NOTIFY ME email/text message list
  • Please contact the Acting Community and Economic Development Director, Nolan Bobroff, for questions or additional info:
    • email: nbobroff@townofmammothlakes.ca.gov
  • Follow 'The Sawyer" on Facebook facebook Opens in new window
Shady Rest Parcels